Pump Booster Enclosure Project
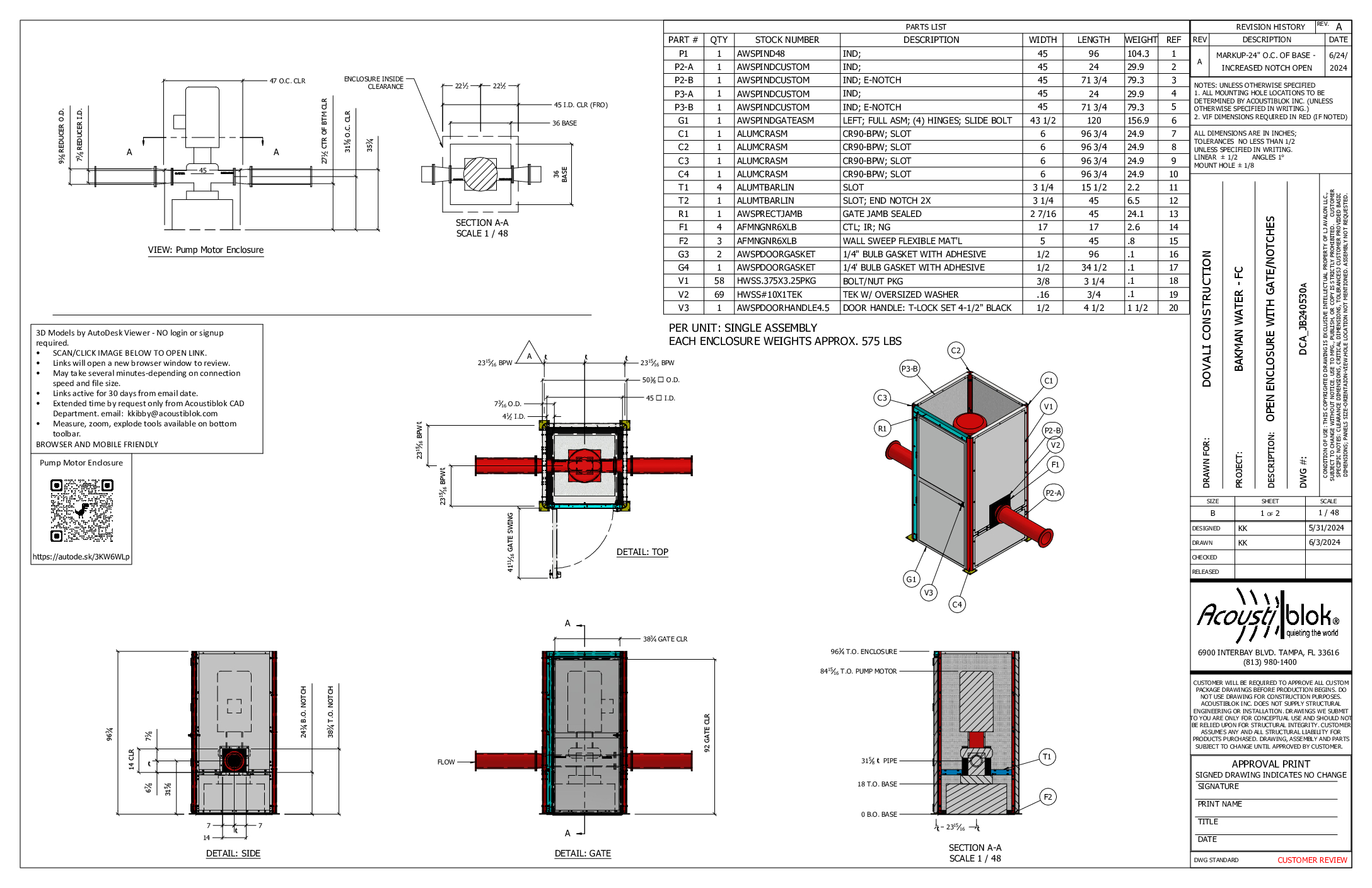
Pump Booster Enclosure Project – Acoustiblok Inc. was contacted by a project manager seeking help to resolve a noise issue with their booster pump equipment. After speaking with one of our noise abatement specialists they were able to develop a solution to the problem using our proprietary All Weather Sound Panels.
AWSPs were used to create sound barrier enclosures, around multiple booster pump motors. The enclosures dramatically reduced the directional noise generated by the constant whining from the pumps, all but eliminating complaints about the noise.
If you have a problem with the noise from a booster pump, give us a call and talk to one of our noise abatement specialists to develop a solution that meets your needs.


AWSP® Enclosure for Booster Pump




 
 